装修案例

湘潭金水湾欧式风格198平设计方案鉴赏

装修模式 全包 人气 1436
装修风格 欧式 区域 岳塘区
装修户型 四居室 装修面积 140-200㎡
设计理念

本案由湘潭知名家装设计师李成制作,她在家装设计领域比较擅长新中式,现代北欧,轻奢等装修风格

欧式风格,它是历史悠久的经典之作,这种风格最大的特点是在造型上极其讲究,给人的感觉端庄典雅、高贵华丽,具有浓厚的文化气息。由于欧式风格大量采用白、乳白与各类金黄、银白有机结合,加上欧式所特有的柱体结构,形成了特有的豪华、富丽风格。这么说吧,欧式风格的豪华达到了一定程度,可以说是要多豪华就有多豪华,从小到厨房、卫生间,大到主卧、餐厅、客厅等都可以富丽堂皇。

如您对本案例感兴趣,想了解更多关于本案的户型解析,装修预算,装修报价等详细装修方案可在线咨询获取!!!

方案说明

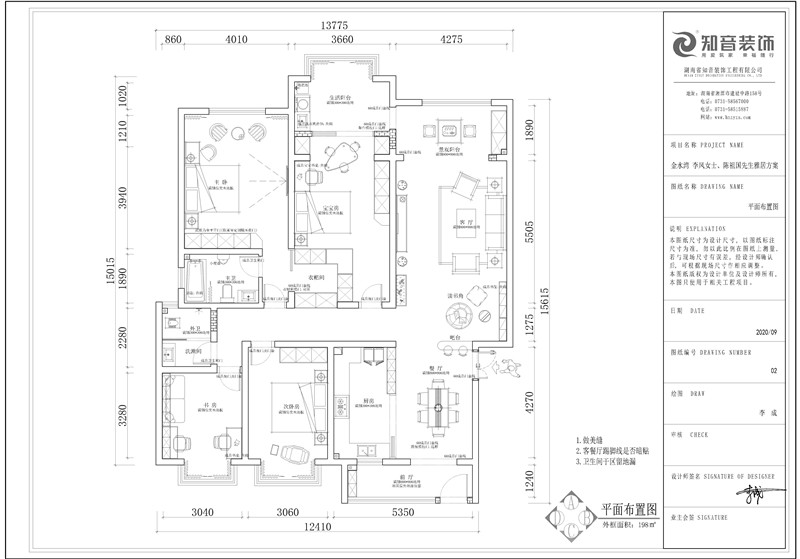
湘潭金水湾欧式风格198平设计方案鉴赏

  点击查看该户型VR全景效果图